Toutes les photos
Voir les hébergements
Voir les tarifs
Les plus du séjour
- A 200 m des pistes
- A 1 km de l’ESF
- A 200 m du centre
- Ascenseur
- Wifi disponible
- Parking disponible
- Voir le détail des services inclus et payants
Description générale de la résidence
Situation : À Valmorel. Commerces à 540m. École de ski à 760m. Remontées mécaniques à 250m.
Appartement de particulier : Confortable et tout équipé. Avec télévision.
Appartement de particulier : Confortable et tout équipé. Avec télévision.
Voir plus
Fermer
Préparez votre séjour
Choisissez votre hébergement
1 pièce 4 personnes 1 pièce 4 personnes Ref: 454369
Plus d’infos
4 personnes
0 chambres
Plus d’infos
Inclus :
Sélectionner
À propos de Appartement Clairière GL248
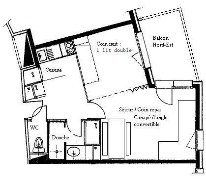
Hameau de la Forêt - Charmant studio divisible, d'une superficie de 30m²,
situé au niveau -1 de la résidence LA CLAIRIERE.
Entrée, cuisine américaine, séjour divisible par une cloison mobile avec d'un côté, un canapé convertible (2 couchages) et de l'autre un lit double (2 couchages)
Salle d'eau et WC indépendants.
Balcon indépendant exposé Nord offrant une jolie vue sur la station et la vallée.
Services inclus : linge de lit, et ménage de fin de séjour (sauf cuisine).
Casier à skis.
APPARTEMENT NON FUMEUR.
ANIMAUX ACCEPTÉS.
Possibilité de louer une place de parking intérieure ou extérieure. Nous consulter.
situé au niveau -1 de la résidence LA CLAIRIERE.
Entrée, cuisine américaine, séjour divisible par une cloison mobile avec d'un côté, un canapé convertible (2 couchages) et de l'autre un lit double (2 couchages)
Salle d'eau et WC indépendants.
Balcon indépendant exposé Nord offrant une jolie vue sur la station et la vallée.
Services inclus : linge de lit, et ménage de fin de séjour (sauf cuisine).
Casier à skis.
APPARTEMENT NON FUMEUR.
ANIMAUX ACCEPTÉS.
Possibilité de louer une place de parking intérieure ou extérieure. Nous consulter.
Voir plus
Les plus de la résidence
Les plus de la résidence
Services proposés
Services proposés
Services
Voir le détail des services inclus et payants
Informations pratiques
Informations pratiques
Heure d'arrivée : à partir de 17h.
Contacter impérativement l’agence avant 18h30 en cas d’arrivée tardive.
Heure de départ : avant 10h.
A régler sur place, le jour de votre arrivée :
Caution (Carte Bleue, Master ou Visa uniquement).
Taxe de séjour (Chèque ou espèce uniquement).
Prestations additionnelles payantes, sous réserve de disponibilité.
Contacter impérativement l’agence avant 18h30 en cas d’arrivée tardive.
Heure de départ : avant 10h.
A régler sur place, le jour de votre arrivée :
Caution (Carte Bleue, Master ou Visa uniquement).
Taxe de séjour (Chèque ou espèce uniquement).
Prestations additionnelles payantes, sous réserve de disponibilité.
Voir le détail
Situation géographique
Cadre de la résidence
Équipement de la résidence
Rapport qualité prix
Ce que pensent nos clients de Appartement Clairière GL248 - 0 expériences
Nos autres résidences - Valmorel
Résidence CGH & SPA - Résidence Boutique La Grange aux Fées 5*
475€/pers. 4,4 (47 avis)
MGM Hôtels & Résidences – Résidence Anitéa 5*
566€/pers. 4,6 (2 avis)
Appartement Cheval Blanc G090
632€/pers.
Chalet Pre Peclet GL360
664€/pers. 5 (1 avis)
Appartement Marches G146
581€/pers.
Appartement Cheval Blanc G371
663€/pers.
Appartement Cheval Blanc G379
743€/pers.
Appartement Côte Soleil G389
610€/pers.
Appartement Cheval Blanc G390
617€/pers.