Du lundi au vendredi de 9h à 19h. Samedi : 10h - 19h. Fermé le dimanche
Service client +33 (0)4 79 96 30 69
Français FR
Nous contacter
Le Service Client Travelski:
+33 (0)4 79 96 30 69

A votre disposition depuis la Savoie A votre disposition depuis la Savoie du lundi au vendredi de 9h à 19h. Le samedi de 10h à 19h. Fermé le dimanche.

J'appelle

Location Hauteluce

Réservez votre séjour au ski à Hauteluce

Vous désirez profiter pleinement de votre séjour avec une Location Hauteluce ? Découvrez nos offres de Location Hauteluce pour skier sans limite à noel, jour de l'an, février. Fermez les yeux et imaginez… Profitez de votre Location Hauteluce, une station réputée et moderne où vous pourrez mêler les plaisirs de la glisse sur les pistes de ski et des activités en totale immersion avec la beauté des paysages montagnards. Pour un week-end ou pour 7 jours en Location Hauteluce , en famille ou entre amis, c'est l'occasion parfaite pour créer des souvenirs uniques de vos vacances au ski.

Notre sélection de locations de vacances au ski pas chères sur Hauteluce

    Alpes du Nord>Hauteluce
    4/5
    69 Avis
    Alpes du Nord >Hauteluce
    Situation : En Savoie, dans le massif du Beaufortain. La résidence se trouve à 100 mètres des commerces et à 500 mètres des remontées mécaniques.

    Résidence : A l'architecture savoyarde. Appartements avec balcon ou terrasse, répartis dans 9 grands chalets de 2 à 3 étages, avec ascenseurs. Sur place à disposition : piscine intérieure chauffée et sauna (avec supplément).
    Lire plus...
    À partir de 1980 €
    495 €
    /log

    Frais de service + 19 €

    Le 03/01/2026 - 7 nuits 
    Les avantages du séjour :
    Parking
    TV
    Piscine
    Lave-vaisselle
    7 nuits  À partir de 1980 €
    495 €
    /log

    Frais de service + 19 €

    Alpes du Nord > Hauteluce
    0/5
    Avis
    Alpes du Nord>Hauteluce
    0/5
    Avis
    Alpes du Nord >Hauteluce
    Lire plus...
    Les avantages du séjour :
    WiFi
    TV
    Lave-vaisselle
    Alpes du Nord > Hauteluce
    0/5
    Avis
    Alpes du Nord>Hauteluce
    0/5
    Avis
    Alpes du Nord >Hauteluce
    Lire plus...
    Les avantages du séjour :
    WiFi
    TV
    Lave-vaisselle
    Alpes du Nord > Hauteluce
    0/5
    Avis
    Alpes du Nord>Hauteluce
    0/5
    Avis
    Alpes du Nord >Hauteluce
    Très belle copropriété idéalement située en avant du centre des Saisies au 225 Route de Chenavelle. Tranquillité et standing à 80m des pistes. Commerces 600m.
    Lire plus...
    Alpes du Nord > Hauteluce
    0/5
    Avis
    Alpes du Nord>Hauteluce
    0/5
    Avis
    Alpes du Nord >Hauteluce
    Très belle copropriété idéalement située en avant du centre des Saisies au 225 Route de Chenavelle. Tranquillité et standing à 100m des pistes. Commerces 600m.
    Lire plus...
    Alpes du Nord > Hauteluce
    0/5
    Avis
    Alpes du Nord>Hauteluce
    0/5
    Avis
    Alpes du Nord >Hauteluce
    Centre ville à 1,10 Km. Commerces à 200 m. ESF à 1,20 Km. Pistes à 150 m. Chalet Savoyard et soigné. Accès facile au 200 rue des Prés. Quartier des Hts Lieux. Vue panoramique. Centre 700m, navette gratuite et accès pistes alpin à 150m.
    Lire plus...
    0/5
    Avis
    Alpes du Nord>Hauteluce
    0/5
    Avis
    Alpes du Nord >Hauteluce
    Chalet sur le secteur d'Hauteluce dans le hameau Annuit à 1.5 km du village d'Hauteluce, situé entre l'Espace Diamant et le domaine skiable des Contamines-Montjoie. Accès aux pistes de ski à 3.1 km (au Chozal à Hauteluce pour le domaine de l'Espace Diamant via Les Saisies), et à 3.7 km (Belleville pour Les Contamines-Montjoie).
    La navette gratuite menant aux 2 domaines s'arrête à quelques mètres du chalet. Épicerie et commerces au village d'Hauteluce.

    Chalet 3 pièces orienté sud avec balcon et terrasse.
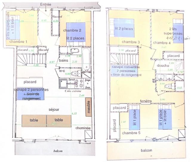
    Le chalet comprend une cuisine équipée, un séjour avec un canapé lit en 160, une chambre avec un lit en 160, une chambre avec 4 lits simples (dont 1 superposés 2x80 et gigognes 2x80), une salle d'eau et 2 wc séparés ( [hidden] : le lit supérieur des lits superposés est interdit aux - de 6 ans)

    Location classée meublé de tourisme 2*, Chalet sans télévision.

    Catégorie ménage: G
    Prestations optionnelles à régler sur place et à réserver avant votre arrivée :
    - Kit bébé : 30 €.
    - Ménage fin de séjour F-G-H : 115 €.
    - Pack linge 1 personne : 21 €.
    - Pack linge 2 personnes : 25 €.
    - Pack linge de toilette 1 personne : 14 €.
    - Location minibox Wifi par semaine : 49 €.

    Ce logement est diffusé par un professionnel. Sauf mention contraire, les prestations, telles que ménage, draps, serviettes etc.. ne sont pas incluses dans le prix de cette location. Si animaux de compagnie admis (indiqué dans annonce), un supplément peut s'appliquer.
    Seuls les équipements mentionnés spécifiquement dans cette annonce sont présents. Un équipement non indiqué n'est pas considéré comme présent. Sauf indication de borne de charge électrique présente dans le logement, la recharge des véhicule électrique est interdite.
    Lire plus...
    Alpes du Nord>Hauteluce
    0/5
    Avis
    Alpes du Nord >Hauteluce
    Lire plus...
    Alpes du Nord > Hauteluce
    0/5
    Avis
    Alpes du Nord>Hauteluce
    0/5
    Avis
    Alpes du Nord >Hauteluce
    Lire plus...
    Alpes du Nord > Hauteluce
    0/5
    Avis
    Alpes du Nord>Hauteluce
    0/5
    Avis
    Alpes du Nord >Hauteluce
    Commerces à 100 m. ESF à 700 m. Pistes à 100 m.Résidence située 554 avenue des Cimes dominant la station. Navette gratuite 30m, départ alpin et proxi 100m env coté Légette, centre et nordique 800m, retour à ski direct !
    Lire plus...
    Alpes du Nord > Hauteluce
    0/5
    Avis
    Alpes du Nord>Hauteluce
    0/5
    Avis
    Alpes du Nord >Hauteluce
    Lire plus...
    Alpes du Nord > Hauteluce
    0/5
    Avis
    Alpes du Nord>Hauteluce
    0/5
    Avis
    Alpes du Nord >Hauteluce
    Centre ville à 600 m. Commerces à 600 m. ESF à 500 m. Pistes à 80 m. Gare à 31 Km. Très belle copropriété idéalement située en avant du centre des Saisies au 225 Route de Chenavelle. Tranquillité et standing à 80m des pistes. Commerces 600m.
    Lire plus...
    Alpes du Nord > Hauteluce
    0/5
    Avis
    Alpes du Nord>Hauteluce
    0/5
    Avis
    Alpes du Nord >Hauteluce
    Chalet neuf achevé à l'été 2021. Idéalement situé en avant du centre des Saisies au 275 route de Chenavelle. Tranquillité et standing à 50m des pistes. Commerces 600m.
    Lire plus...
    Alpes du Nord>Hauteluce
    0/5
    Avis
    Alpes du Nord >Hauteluce
    Lire plus...
    Alpes du Nord > Hauteluce
    0/5
    Avis
    Alpes du Nord>Hauteluce
    0/5
    Avis
    Alpes du Nord >Hauteluce
    Lire plus...
    Alpes du Nord > Hauteluce
    0/5
    Avis
    Alpes du Nord>Hauteluce
    0/5
    Avis
    Alpes du Nord >Hauteluce
    Lire plus...
    Alpes du Nord > Hauteluce
    0/5
    Avis
    Alpes du Nord>Hauteluce
    0/5
    Avis
    Alpes du Nord >Hauteluce
    Lire plus...
    Alpes du Nord > Hauteluce
    0/5
    Avis
    Alpes du Nord>Hauteluce
    0/5
    Avis
    Alpes du Nord >Hauteluce
    Lire plus...

    Comment bien organiser votre voyage au ski dans les Location Hauteluce ?

    Pour bien préparer votre location d'appartement ski, il y a quelques détails à prévoir : vérifier par exemple que vous êtes titulaire d'une assurance rapatriement et que vous avez imprimé tous les documents de voyages relatifs à votre réservation. Ils seront à présenter à votre résidence lors de votre arrivée. Vous êtes habitué des Location Hauteluce ? Redécouvrez avec plaisir les pistes de votre station de ski !