Toutes les photos
Voir les hébergements
Voir les tarifs
Les plus du séjour
- Voir le détail des services inclus et payants
Description générale de la résidence
Résidence située au bout de la rue du Mirantin (parallèle à l'avenue des JO), à 250m du coeur de la station et 450m du regroupement ESF et des pistes.
Vue sur le massif du Beaufortain et le Mont Bisanne
Possibilité de rejoindre le parking des Carrets (télésièges Légette et Carrets, rassemblement ESF) par une piste bleue. Accès situé à 20 m en amont de la résidence.
En option : ménage de fin de séjour - location linge de lit et toilette - location box wifi - location box ou garage (selon disponibilité).
Meublé classé 2** pour le confort de 9 personnes (pouvant accueillir 10 personnes)
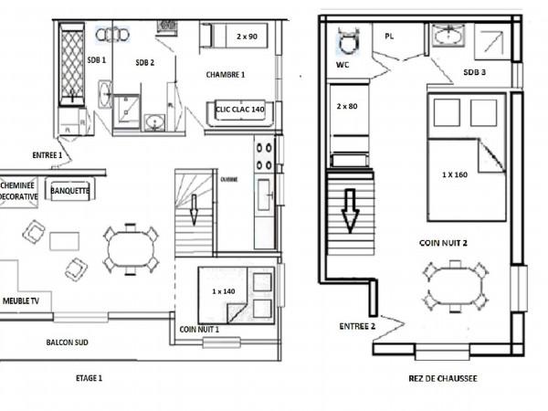
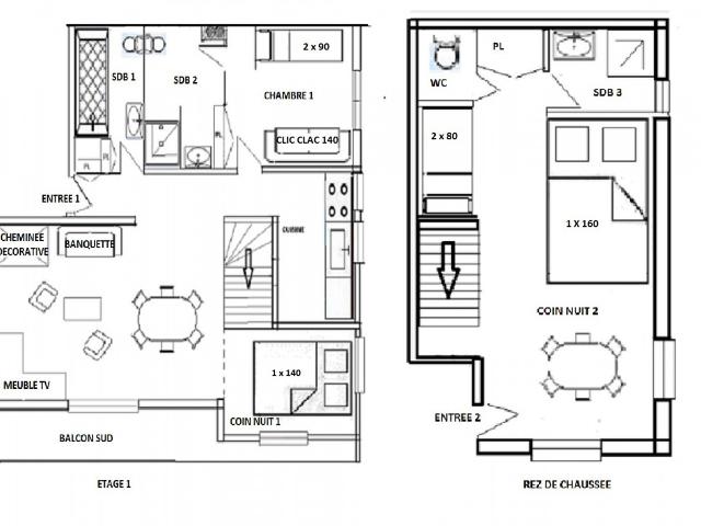
HERBERGEMENT : Duplex inversé de 87 m², 1er étage , orienté SUD avec balcon (12 M²) vue sur le Beaufortain et le Mont Bisanne.
COUCHAGES : Un coin nuit fermé par un rideau avec un lit en 140,une chambre avec une salle d'eau attenante comprenant un clic clac et 2 lits superposés,1 coin montagne fermé par un rideau avec 2 lits superposés (au RDC),1 lit double en 160 (RDC) soit 4*80, 2*140 et 1*160.
15 couvertures, 18 oreillers, 3 couettes 2 personnes
SANITAIRES : 1 Salle De Bain avec WC, 1 salle d'eau(douche) avec WC,
1 salle d'eau(douche), 1 wc séparé.
CUISINE : Cuisine avec passe-plat donnant sur le coin repas, comprenant 4 plaques à induction, un four, un four micro-ondes, un réfrigérateur et un lave-vaisselle.
EQUIPEMENT : télévision écran plat, 1 box wi-fi,1 lave linge, 1 chaise longue, cheminée décorative.
DIVERS : 2 casiers à skis, animaux refusés, appartement non-fumeur, (catégorie J).
CHEMINEE NON FONCTIONNELLE
Assurance annulation optionnelle
En raison de la pandémie de coronavirus (COVID-19), les établissements ont réduit les horaires de leur réception et de ses services. Pensez à prendre contact avec eux (coordonnées indiquées dans votre Bon de séjour) avant votre arrivée pour vérifier ces horaires.
Dans le cadre de la pandémie de coronavirus (COVID-19), les établissements appliquent actuellement des mesures sanitaires supplémentaires exceptionnelles. En conséquence, certains services et équipements peuvent être réduits ou indisponibles.
Vue sur le massif du Beaufortain et le Mont Bisanne
Possibilité de rejoindre le parking des Carrets (télésièges Légette et Carrets, rassemblement ESF) par une piste bleue. Accès situé à 20 m en amont de la résidence.
En option : ménage de fin de séjour - location linge de lit et toilette - location box wifi - location box ou garage (selon disponibilité).
Meublé classé 2** pour le confort de 9 personnes (pouvant accueillir 10 personnes)
HERBERGEMENT : Duplex inversé de 87 m², 1er étage , orienté SUD avec balcon (12 M²) vue sur le Beaufortain et le Mont Bisanne.
COUCHAGES : Un coin nuit fermé par un rideau avec un lit en 140,une chambre avec une salle d'eau attenante comprenant un clic clac et 2 lits superposés,1 coin montagne fermé par un rideau avec 2 lits superposés (au RDC),1 lit double en 160 (RDC) soit 4*80, 2*140 et 1*160.
15 couvertures, 18 oreillers, 3 couettes 2 personnes
SANITAIRES : 1 Salle De Bain avec WC, 1 salle d'eau(douche) avec WC,
1 salle d'eau(douche), 1 wc séparé.
CUISINE : Cuisine avec passe-plat donnant sur le coin repas, comprenant 4 plaques à induction, un four, un four micro-ondes, un réfrigérateur et un lave-vaisselle.
EQUIPEMENT : télévision écran plat, 1 box wi-fi,1 lave linge, 1 chaise longue, cheminée décorative.
DIVERS : 2 casiers à skis, animaux refusés, appartement non-fumeur, (catégorie J).
CHEMINEE NON FONCTIONNELLE
Assurance annulation optionnelle
En raison de la pandémie de coronavirus (COVID-19), les établissements ont réduit les horaires de leur réception et de ses services. Pensez à prendre contact avec eux (coordonnées indiquées dans votre Bon de séjour) avant votre arrivée pour vérifier ces horaires.
Dans le cadre de la pandémie de coronavirus (COVID-19), les établissements appliquent actuellement des mesures sanitaires supplémentaires exceptionnelles. En conséquence, certains services et équipements peuvent être réduits ou indisponibles.
Voir plus
Fermer
Préparez votre séjour
Choisissez votre hébergement
zzz avec balcon zzz avec balcon Ref: 583949
Plus d’infos
10 personnes
3 chambres
Plus d’infos
Inclus :
Sélectionner
À propos de Appartement duplex 87 m², orienté SUD, classé 2**
Résidence située au bout de la rue du Mirantin (parallèle à l'avenue des JO), à 250m du coeur de la station et 450m du regroupement ESF et des pistes.
Vue sur le massif du Beaufortain et le Mont Bisanne
Possibilité de rejoindre le parking des Carrets (télésièges Légette et Carrets, rassemblement ESF) par une piste bleue. Accès situé à 20 m en amont de la résidence.
En option : ménage de fin de séjour - location linge de lit et toilette - location box wifi - location box ou garage (selon disponibilité).
Meublé classé 2** pour le confort de 9 personnes (pouvant accueillir 10 personnes)
HERBERGEMENT : Duplex inversé de 87 m², 1er étage , orienté SUD avec balcon (12 M²) vue sur le Beaufortain et le Mont Bisanne.
COUCHAGES : Un coin nuit fermé par un rideau avec un lit en 140,une chambre avec une salle d'eau attenante comprenant un clic clac et 2 lits superposés,1 coin montagne fermé par un rideau avec 2 lits superposés (au RDC),1 lit double en 160 (RDC) soit 4*80, 2*140 et 1*160.
15 couvertures, 18 oreillers, 3 couettes 2 personnes
SANITAIRES : 1 Salle De Bain avec WC, 1 salle d'eau(douche) avec WC,
1 salle d'eau(douche), 1 wc séparé.
CUISINE : Cuisine avec passe-plat donnant sur le coin repas, comprenant 4 plaques à induction, un four, un four micro-ondes, un réfrigérateur et un lave-vaisselle.
EQUIPEMENT : télévision écran plat, 1 box wi-fi,1 lave linge, 1 chaise longue, cheminée décorative.
DIVERS : 2 casiers à skis, animaux refusés, appartement non-fumeur, (catégorie J).
CHEMINEE NON FONCTIONNELLE
Assurance annulation optionnelle
En raison de la pandémie de coronavirus (COVID-19), les établissements ont réduit les horaires de leur réception et de ses services. Pensez à prendre contact avec eux (coordonnées indiquées dans votre Bon de séjour) avant votre arrivée pour vérifier ces horaires.
Dans le cadre de la pandémie de coronavirus (COVID-19), les établissements appliquent actuellement des mesures sanitaires supplémentaires exceptionnelles. En conséquence, certains services et équipements peuvent être réduits ou indisponibles.
Vue sur le massif du Beaufortain et le Mont Bisanne
Possibilité de rejoindre le parking des Carrets (télésièges Légette et Carrets, rassemblement ESF) par une piste bleue. Accès situé à 20 m en amont de la résidence.
En option : ménage de fin de séjour - location linge de lit et toilette - location box wifi - location box ou garage (selon disponibilité).
Meublé classé 2** pour le confort de 9 personnes (pouvant accueillir 10 personnes)
HERBERGEMENT : Duplex inversé de 87 m², 1er étage , orienté SUD avec balcon (12 M²) vue sur le Beaufortain et le Mont Bisanne.
COUCHAGES : Un coin nuit fermé par un rideau avec un lit en 140,une chambre avec une salle d'eau attenante comprenant un clic clac et 2 lits superposés,1 coin montagne fermé par un rideau avec 2 lits superposés (au RDC),1 lit double en 160 (RDC) soit 4*80, 2*140 et 1*160.
15 couvertures, 18 oreillers, 3 couettes 2 personnes
SANITAIRES : 1 Salle De Bain avec WC, 1 salle d'eau(douche) avec WC,
1 salle d'eau(douche), 1 wc séparé.
CUISINE : Cuisine avec passe-plat donnant sur le coin repas, comprenant 4 plaques à induction, un four, un four micro-ondes, un réfrigérateur et un lave-vaisselle.
EQUIPEMENT : télévision écran plat, 1 box wi-fi,1 lave linge, 1 chaise longue, cheminée décorative.
DIVERS : 2 casiers à skis, animaux refusés, appartement non-fumeur, (catégorie J).
CHEMINEE NON FONCTIONNELLE
Assurance annulation optionnelle
En raison de la pandémie de coronavirus (COVID-19), les établissements ont réduit les horaires de leur réception et de ses services. Pensez à prendre contact avec eux (coordonnées indiquées dans votre Bon de séjour) avant votre arrivée pour vérifier ces horaires.
Dans le cadre de la pandémie de coronavirus (COVID-19), les établissements appliquent actuellement des mesures sanitaires supplémentaires exceptionnelles. En conséquence, certains services et équipements peuvent être réduits ou indisponibles.
Voir plus
Les plus de la résidence
Les plus de la résidence
Services proposés
Services proposés
Services
Voir le détail des services inclus et payants
Voir le détail
Situation géographique
Cadre de la résidence
Équipement de la résidence
Rapport qualité prix
Ce que pensent nos clients de Appartement duplex 87 m², orienté SUD, classé 2** - 0 expériences
Nos autres résidences - Les Saisies
Résidence CGH & SPA - Le Hameau du Beaufortain 4*
505€/pers. 4,4 (79 avis)
Résidence Lagrange Vacances Les Chalets d'Emeraude 4*
543€/pers. 4,4 (35 avis)
Appartements ALPENROSE
449€/pers.
Appartements BISANNE
453€/pers.
Appartements BREITHORN
465€/pers.
CHALET DU LAC 1
455€/pers.
CHALET DU LAC 2
463€/pers.
CHALET JUBIER
658€/pers.
Appartements CRISTAL 1
447€/pers.