Toutes les photos
Voir les hébergements
Voir les tarifs
Les plus du séjour
- Voir le détail des services inclus et payants
Description générale de la résidence
Ambiance montagne pour le Grand Mont bât 3. Situé à 2 pas de l'Hotel CALGARY. Les départ et retour à skis sont à 150 mètres ! Mountain twister et jardin d'enfants sont à 200m, commerces 300m. Situé dans le virage au 221 avenue des Cimes et de la rue des Périots.
- Accès : direct par la rue des périots
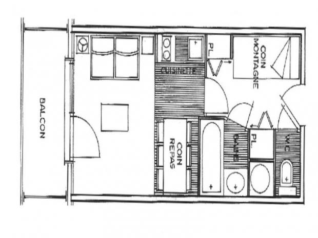
- Appartement type STUDIO CABINE. (réference: GM3310)
- Surface : 22 m² env, beau balcon sud : 8 m² env,
- Etage : 1 er,
- Couchages : 4
- séjour : 1 clic-clac,
- cabine séparée du séjour par une porte : 2 lits superposés,
- Salle de bains : baignoire, WC séparés,
- Exposition : plein sud avec vue dégagée sur les pistes et le massif du BEAUFORTAIN ,
- Equipements particuliers : téléviseur, micro-ondes, appareil à fondue, cocotte-minute, chaises balcon, pelle à neige...
- LITERIE : 4 oreillers, 2 couvertures 140, 2 couvertures 90.
- REMARQUES
- Appartement tout équipé, ( non fourni : draps et linge de maison ),
- Un casier à skis est à votre disposition
- Accès : direct par la rue des périots
- Appartement type STUDIO CABINE. (réference: GM3310)
- Surface : 22 m² env, beau balcon sud : 8 m² env,
- Etage : 1 er,
- Couchages : 4
- séjour : 1 clic-clac,
- cabine séparée du séjour par une porte : 2 lits superposés,
- Salle de bains : baignoire, WC séparés,
- Exposition : plein sud avec vue dégagée sur les pistes et le massif du BEAUFORTAIN ,
- Equipements particuliers : téléviseur, micro-ondes, appareil à fondue, cocotte-minute, chaises balcon, pelle à neige...
- LITERIE : 4 oreillers, 2 couvertures 140, 2 couvertures 90.
- REMARQUES
- Appartement tout équipé, ( non fourni : draps et linge de maison ),
- Un casier à skis est à votre disposition
Voir plus
Fermer
Préparez votre séjour
Choisissez votre hébergement
zzz zzz Ref: 266714
Plus d’infos
4 personnes
0 chambres
Plus d’infos
Inclus :
Sélectionner
À propos de GRAND MONT 3
Ambiance montagne pour le Grand Mont bât 3. Situé à 2 pas de l'Hotel CALGARY. Les départ et retour à skis sont à 150 mètres ! Mountain twister et jardin d'enfants sont à 200m, commerces 300m. Situé dans le virage au 221 avenue des Cimes et de la rue des Périots.
- Accès : direct par la rue des périots
- Appartement type STUDIO CABINE. (réference: GM3310)
- Surface : 22 m² env, beau balcon sud : 8 m² env,
- Etage : 1 er,
- Couchages : 4
- séjour : 1 clic-clac,
- cabine séparée du séjour par une porte : 2 lits superposés,
- Salle de bains : baignoire, WC séparés,
- Exposition : plein sud avec vue dégagée sur les pistes et le massif du BEAUFORTAIN ,
- Equipements particuliers : téléviseur, micro-ondes, appareil à fondue, cocotte-minute, chaises balcon, pelle à neige...
- LITERIE : 4 oreillers, 2 couvertures 140, 2 couvertures 90.
- REMARQUES
- Appartement tout équipé, ( non fourni : draps et linge de maison ),
- Un casier à skis est à votre disposition
- Accès : direct par la rue des périots
- Appartement type STUDIO CABINE. (réference: GM3310)
- Surface : 22 m² env, beau balcon sud : 8 m² env,
- Etage : 1 er,
- Couchages : 4
- séjour : 1 clic-clac,
- cabine séparée du séjour par une porte : 2 lits superposés,
- Salle de bains : baignoire, WC séparés,
- Exposition : plein sud avec vue dégagée sur les pistes et le massif du BEAUFORTAIN ,
- Equipements particuliers : téléviseur, micro-ondes, appareil à fondue, cocotte-minute, chaises balcon, pelle à neige...
- LITERIE : 4 oreillers, 2 couvertures 140, 2 couvertures 90.
- REMARQUES
- Appartement tout équipé, ( non fourni : draps et linge de maison ),
- Un casier à skis est à votre disposition
Voir plus
Les plus de la résidence
Les plus de la résidence
Services proposés
Services proposés
Services
Voir le détail des services inclus et payants
Voir le détail
Situation géographique
Cadre de la résidence
Équipement de la résidence
Rapport qualité prix
Ce que pensent nos clients de GRAND MONT 3 - 0 expériences
Nos autres résidences - Les Saisies
Résidence CGH & SPA - Le Hameau du Beaufortain 4*
505€/pers. 4,4 (79 avis)
Résidence Lagrange Vacances Les Chalets d'Emeraude 4*
543€/pers. 4,4 (35 avis)
Appartements ALPENROSE
449€/pers.
Appartements BISANNE
453€/pers.
Appartements BREITHORN
465€/pers.
CHALET DU LAC 1
455€/pers.
CHALET DU LAC 2
463€/pers.
CHALET JUBIER
658€/pers.
Appartements CRISTAL 1
447€/pers.