Toutes les photos
Voir les hébergements
Voir les tarifs
Les plus du séjour
- Voir le détail des services inclus et payants
Description générale de la résidence
Résidence classique dominant la station des SAISIES offrant une vue panoramique. Accès facile au 284 avenue des Cimes. Centre, pistes alpin 300m, nordique 400m. Retour à ski direct ! Navette gratuite 20m.
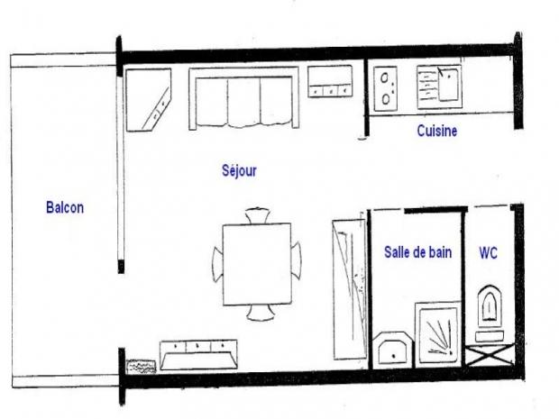
APPARTEMENT type STUDIO (réference: PLSA16)
Surface : 20.67 m², Balcon sud : 5.37m²
Etage : Premier
Accès : 1 niveau d'escaliers intérieurs à monter
Couchages : 3 personnes (4 tolérés)
- séjour : un canapé convertible + 2 lits superposés
Salle de bains : douche
WC séparés
Exposition : plein sud avec vue panoramique sur les pistes et le massif du BEAUFORTAIN,
Equipements particuliers : TV, Lave vaisselle, Lave-linge, Hotte aspirante, four tradi, four micro-ondes, cafetière électrique, appareil à raclette...
LITERIE : 4 oreillers, 2 couvertures, 2 couettes simples
REMARQUES
Appartement tout équipé, (non fourni : draps et linge de maison),
Sont à disposition:
Un petit casier à skis metallique au rez de chaussé,
Un placard locataire situé en face du logement.
APPARTEMENT type STUDIO (réference: PLSA16)
Surface : 20.67 m², Balcon sud : 5.37m²
Etage : Premier
Accès : 1 niveau d'escaliers intérieurs à monter
Couchages : 3 personnes (4 tolérés)
- séjour : un canapé convertible + 2 lits superposés
Salle de bains : douche
WC séparés
Exposition : plein sud avec vue panoramique sur les pistes et le massif du BEAUFORTAIN,
Equipements particuliers : TV, Lave vaisselle, Lave-linge, Hotte aspirante, four tradi, four micro-ondes, cafetière électrique, appareil à raclette...
LITERIE : 4 oreillers, 2 couvertures, 2 couettes simples
REMARQUES
Appartement tout équipé, (non fourni : draps et linge de maison),
Sont à disposition:
Un petit casier à skis metallique au rez de chaussé,
Un placard locataire situé en face du logement.
Voir plus
Fermer
Préparez votre séjour
Choisissez votre hébergement
zzz zzz Ref: 267231
Plus d’infos
4 personnes
0 chambres
Plus d’infos
Inclus :
Sélectionner
À propos de PLEIN SOLEIL A
Résidence classique dominant la station des SAISIES offrant une vue panoramique. Accès facile au 284 avenue des Cimes. Centre, pistes alpin 300m, nordique 400m. Retour à ski direct ! Navette gratuite 20m.
APPARTEMENT type STUDIO (réference: PLSA16)
Surface : 20.67 m², Balcon sud : 5.37m²
Etage : Premier
Accès : 1 niveau d'escaliers intérieurs à monter
Couchages : 3 personnes (4 tolérés)
- séjour : un canapé convertible + 2 lits superposés
Salle de bains : douche
WC séparés
Exposition : plein sud avec vue panoramique sur les pistes et le massif du BEAUFORTAIN,
Equipements particuliers : TV, Lave vaisselle, Lave-linge, Hotte aspirante, four tradi, four micro-ondes, cafetière électrique, appareil à raclette...
LITERIE : 4 oreillers, 2 couvertures, 2 couettes simples
REMARQUES
Appartement tout équipé, (non fourni : draps et linge de maison),
Sont à disposition:
Un petit casier à skis metallique au rez de chaussé,
Un placard locataire situé en face du logement.
APPARTEMENT type STUDIO (réference: PLSA16)
Surface : 20.67 m², Balcon sud : 5.37m²
Etage : Premier
Accès : 1 niveau d'escaliers intérieurs à monter
Couchages : 3 personnes (4 tolérés)
- séjour : un canapé convertible + 2 lits superposés
Salle de bains : douche
WC séparés
Exposition : plein sud avec vue panoramique sur les pistes et le massif du BEAUFORTAIN,
Equipements particuliers : TV, Lave vaisselle, Lave-linge, Hotte aspirante, four tradi, four micro-ondes, cafetière électrique, appareil à raclette...
LITERIE : 4 oreillers, 2 couvertures, 2 couettes simples
REMARQUES
Appartement tout équipé, (non fourni : draps et linge de maison),
Sont à disposition:
Un petit casier à skis metallique au rez de chaussé,
Un placard locataire situé en face du logement.
Voir plus
Les plus de la résidence
Les plus de la résidence
Services proposés
Services proposés
Services
Voir le détail des services inclus et payants
Voir le détail
Situation géographique
Cadre de la résidence
Équipement de la résidence
Rapport qualité prix
Ce que pensent nos clients de PLEIN SOLEIL A - 0 expériences
Nos autres résidences - Les Saisies
Résidence CGH & SPA - Le Hameau du Beaufortain 4*
505€/pers. 4,4 (79 avis)
Résidence Lagrange Vacances Les Chalets d'Emeraude 4*
543€/pers. 4,4 (35 avis)
Appartements ALPENROSE
449€/pers.
Appartements BISANNE
453€/pers.
Appartements BREITHORN
465€/pers.
CHALET DU LAC 1
455€/pers.
CHALET DU LAC 2
463€/pers.
CHALET JUBIER
658€/pers.
Appartements CRISTAL 1
447€/pers.